Executie Relevee Masuratori. Format 2D 3D

Valabil din 2/21/2026 2:47:12 PM
Specificații
Descriere
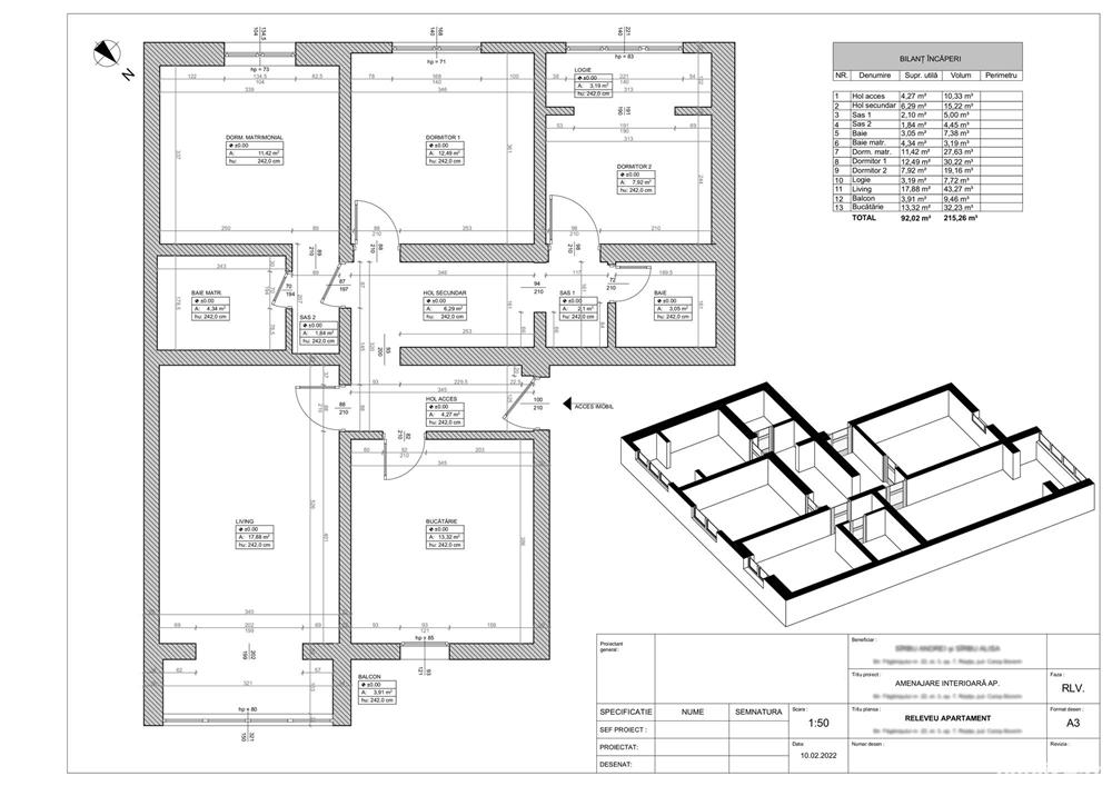
Releveu diferite tipuri de imobile (case, apartamente, spații comerciale, hale, etc)

Pachetul de măurători poate conține:

-Planșele aferente tuturor etajelor (orice format 2D)
-Fațade
-Secțiuni caracteristice
-3D construcție imobil la cerere

Plașele rezultate vor fi predate la alegere atât în format digital cât și fizic.

Prețul diferă în funcție de complexitatea fiecărui proiect în parte. Toate acesta rămânând a se detalia în urma unei ofertări personalizate oricărui tip de beneficiar.

Experiență:
Colaborări în relevare cu o multitudine de spații comerciale locuinte persoane fizice.

ID anunț: 1652907214

Raportează

Anunțuri recomandate

Contactează vânzătorul
Pentru a reduce riscul mesajelor de tip spam, adresele de email nu sunt permise in mesagerie.
Caractere rămase: 3000
Adaugă fișier
? Fișiere acceptate: jpg, jpeg, png, doc, pdf, txt, xls, docx, xlsx, odt, heic, heif, cu o mărime maximă de 10Mb.